Descriptif
À ne surtout pas rater : spacieux et lumineux appartement de 5.5 pièces dans un des villages les plus demandés de la région, à moins d'un million!
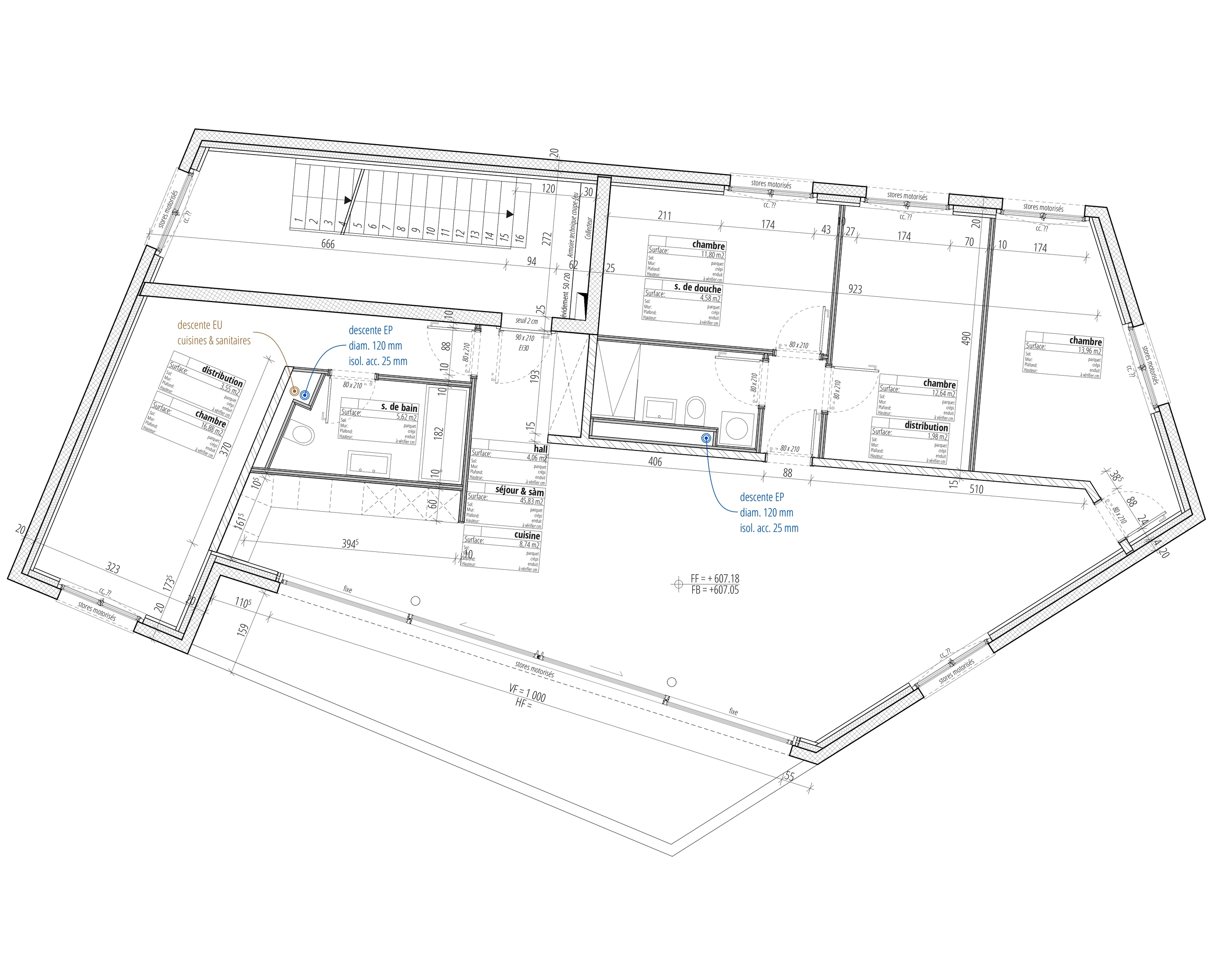
Le lot C-02 est un appartement de 5.5 pièces en construction dans une promotion de standing à Belfaux, présentant les caractéristiques suivantes:
- seul sur le palier, au 1er étage d'un bâtiment de 3 appartements
- belle orientation Sud-Est-Ouest avec joli dégagement sur les Préalpes
- 137m2 de surface habitable PPE
- 22m2 de balcon
- cave confortable de 10m2
- 2 places de parc couvertes en sus du prix de vente | 50'000.-
- promotion de standing avec design épuré: façade béton brut, stores électriques, pompe à chaleur, panneaux photovoltaïques, quartier piéton, jardin collectif, mur anti-bruit
- budgets très confortables pour faire les choix de vos finitions: 24'000.- pour 2 salles-de-bain et 27'200.- pour la cuisine
- construction en cours : livraison fin 2025 - début 2026
C'est votre première acquisition pour votre habitation principale? Économisez 15'000.- en frais d'achat sur cet appartement!
N'hésitez pas à vous inscrire gratuitement pour demander le dossier de vente ou une visite de chantier sans engagement.
Le lot C-02 est un appartement de 5.5 pièces en construction dans une promotion de standing à Belfaux, présentant les caractéristiques suivantes:
- seul sur le palier, au 1er étage d'un bâtiment de 3 appartements
- belle orientation Sud-Est-Ouest avec joli dégagement sur les Préalpes
- 137m2 de surface habitable PPE
- 22m2 de balcon
- cave confortable de 10m2
- 2 places de parc couvertes en sus du prix de vente | 50'000.-
- promotion de standing avec design épuré: façade béton brut, stores électriques, pompe à chaleur, panneaux photovoltaïques, quartier piéton, jardin collectif, mur anti-bruit
- budgets très confortables pour faire les choix de vos finitions: 24'000.- pour 2 salles-de-bain et 27'200.- pour la cuisine
- construction en cours : livraison fin 2025 - début 2026
C'est votre première acquisition pour votre habitation principale? Économisez 15'000.- en frais d'achat sur cet appartement!
N'hésitez pas à vous inscrire gratuitement pour demander le dossier de vente ou une visite de chantier sans engagement.
Commodités
Environnement
- Quartier de villas
- Commerces
- Banque
- Poste
- Restaurant(s)
- Pharmacie
- Arrêt de bus
- Enfants bienvenus
- Aire de jeux
- Crèche/garderie
- Ecole maternelle
- Ecole primaire
- Manège
- Centre sportif
- Sentiers de randonnée
- Médecin
Extérieur
- Balcon(s)
- Place(s) de parc couverte(s)
Intérieur
- Sans ascenseur
- Cuisine ouverte
- WC séparés
- WC visiteurs
- Cave
- Triple vitrage
- Lumineux
Equipement
- Cuisine équipée
- Buanderie privée
- Panneaux photovoltaiques
- Connexion Internet
- Stores électriques
Sol
- Carrelage
- Parquet
Exposition
- Sud
- Est
Ensoleillement
- Optimal
- Toute la journée
- Matinal
Vue
- Belle vue
Style
- Moderne







